3 sobno stanovanje M15_13

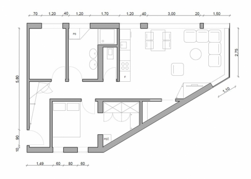
Stanovanje se nahaja v prvem nadstropju poslovno stanovanjske stavbe Pam na Mušičevi ulici 15 v Novem mestu, v skupni izmeri 59,20 m2, ki obsega opremljene stanovanjske prostore - dnevna soba s kuhinjo, spalnica, otroška soba, kopalnica, wc,  hodnik. Stanovanju pripada tudi souporaba skupnih prostorov in 1 parkirni prostor.