Dvojček z atrijem
Objekt je zasnovan kot dvojček z atrijem v mirni soseski.



Naprodaj je sodoben dvojček z lastnim atrijem na prijetni in mirni lokaciji v Mali vasi za Bežigradom. Lokacija je odmaknjena od mestnega vrveža, hkrati pa omogoča hitro dostopnost do vse potrebne infrastrukture v neposredni bližini.
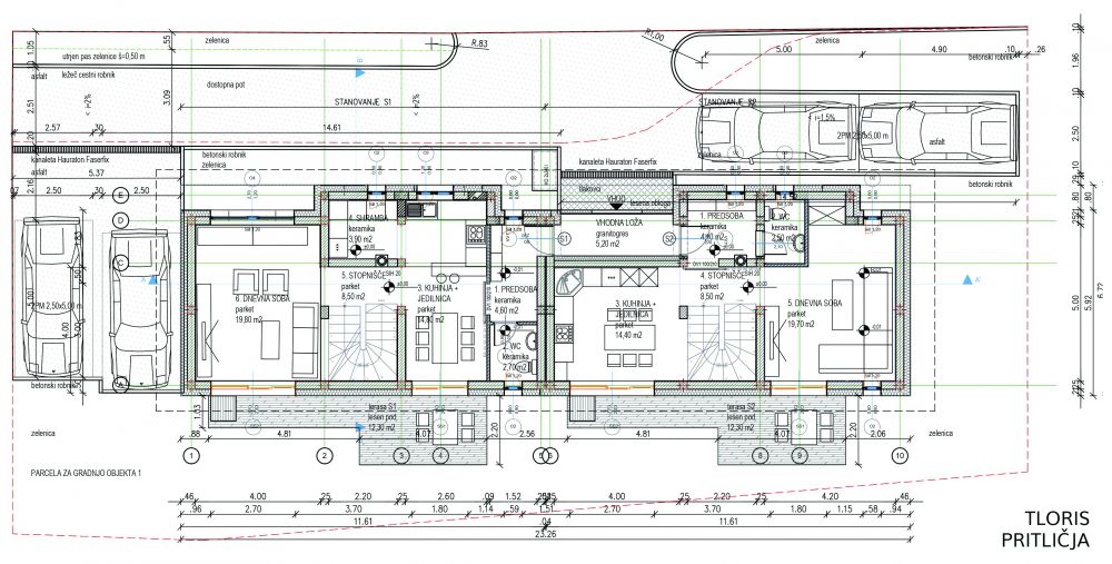
Objekt obsega 168,2 m² funkcionalne bivalne površine ter dve parkirni mesti.
Hiša se prodaja v III. podaljšani gradbeni fazi, kar vključuje konstrukcijo objekta, streho, okna, fasado ter komunalne priključke do objekta (elektrika, voda in kanalizacija).
V ceno so vključene tudi naslednje storitve:
- arhitekturno svetovanje
- idejno zasnovo notranjega notranjega oblikovanja
- PZI in PID dokumentacija z vodenjem postopka pridobitve uporabnega dovoljenja
- fotorealistične 3d vizualizacije vseh prostorov




Osnovni podatki
- Neto notranja površina: 168,2 m²
- klet: 58,1 m²
- pritličje: 55,8 m²
- nadstropje: 54,3 m²
- Atrij: 13,3 m²
- Neto notranja + zunanja površina: 181,5 m²
- Parkiranje: 2 zunanji parkirni mesti
Kontakt:
Aleš — 041 612 368; pam@pamnm.si
Matic — 031 272 312: matic@aab.archi
CENA: 510.000,00 € z DDV



